Sprzedam aluminiowe drzwi harmonijkowe (okno/drzwi tarasowe) – stan idealny
30 000 PLN
📍 Lokalizacja
Łukęcin, gm. Dziwnów, woj. Zachodniopomorskie
🔧 Stan
Używany
Opis
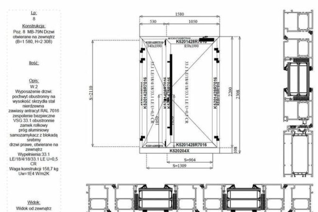
Do sprzedaży wysokiej jakości aluminiowe drzwi harmonijkowe (okno/drzwi tarasowe typu harmonijka / bi-fold). Demontaż z budynku usługowego na etapie budowy w związku ze zmianą charakteru użytkowania nieruchomości. Używane bardzo krótko, zakupione końcem 2024 roku. Stan idealny, bez uszkodzeń szyb, ram, okuć czy uszczelek.
Parametry dostępne:
- Moduł 1: 6 500 cm × 2 309 cm (szer. × wys.)
- Moduł 2: 5 790 cm × 2 309 cm (szer. × wys.)
- Moduł drzwiowy / wejściowy: 1 580 cm × 2 308 cm (szer. × wys.)
Najważniejsze cechy:
- Profil aluminiowy ciepły, pakiet 3-szybowy.
- Kolor antracyt (RAL 7016) – obustronny (ten sam kolor wewnątrz i na zewnątrz).
- Całość w systemie aluminiowym dedykowanym do dużych przeszkleń tarasowych / ogrodowych.
- Szczegóły techniczne dostępne na rysunkach.
- Stan wizualny i techniczny bardzo dobry / idealny – brak rys, wgnieceń, przetarć uszczelek, szyby czyste i bez mikrorys.
Lokalizacja: Łukęcin, gm. Dziwnów, woj. Zachodniopomorskie. Miejsce odbioru: Jaskulin 5, Łukęcin.
Odbiór własnym transportem.
Źródło: lukecin.lento.pl
